About 356 Hamilton Lane
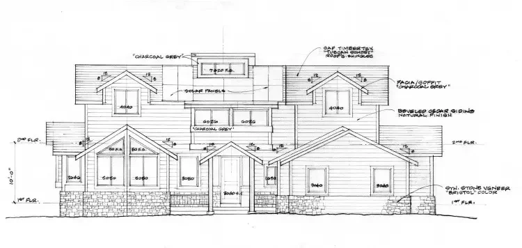
Discover the perfect canvas for your dream mountain home in the prestigious Northstar subdivision. This expansive .53-acre lot offers an unparalleled opportunity to build your ideal retreat amidst breathtaking natural beauty. This lot has a gentle downward slope, simplifying construction and maximizing the usability of the land. Immerse yourself in the stunning panoramic views of Quandary Peak, Mount Helen, Continental Divide, Grays Peak, Baldy Mountain and so much more. Structural and architectural drawings for a spacious 3,400 sqft, 4-bedroom home are included as well as wetlands report (no wetlands), soil report and survey! Don't miss this unique opportunity to create a custom haven in one of the most desirable locations.
Features of 356 Hamilton Lane
| MLS® # | S1065837 |
|---|---|
| Price | $220,000 |
| Bathrooms | 0.00 |
| Acres | 0.53 |
| Type | Land |
| Sub-Type | Unimproved Land |
| Status | Active |
Community Information
| Address | 356 Hamilton Lane |
|---|---|
| Area | Breckenridge |
| Subdivision | QUANDARY VILLAGE SUB AKA NORTHSTAR VILLAGE |
| City | Breckenridge |
| County | Summit |
| State | CO |
| Zip Code | 80424 |
Amenities
| Amenities | Snow Removal |
|---|---|
| Utilities | Cable Available, Electricity Available, Natural Gas Available, Phone Available, Trash Collection |
| View | Mountain(s), Southern Exposure, Trees/Woods |
| Is Waterfront | No |
| Has Pool | No |
Interior
| Fireplace | No |
|---|---|
| Has Basement | No |
Exterior
| Lot Description | Near Ski Area, Sloped, See Remarks |
|---|
Additional Information
| Date Listed | January 10th, 2026 |
|---|---|
| Foreclosure | No |
| Short Sale | No |
| RE / Bank Owned | No |
| HOA Fees | 816 |
| HOA Fees Freq. | Annually |
Listing Details
| Office | LIV Sotheby's I.R. |
|---|
